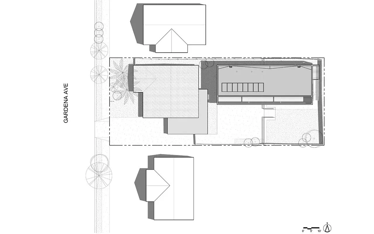
GARDENA ADU
Where contemporary style meets serene retreat of the suburbs of the city. This exceptional Accessory Dwelling Unit redefines suburban life through its innovative design, seamlessly blending modern aesthetics with sustainable functionality. Spaces filled with natural light, eco-conscious features, and thoughtful details converge to create a harmonious oasis that transcends the ordinary.
Designed to be an extension of the owner, this ADU welcomes you with a layout that maximizes natural light. Meticulously curated interiors play with the private vs public spaces, muted hues, and organic elements, offering a canvas for comfort and creativity to intertwine. Every corner of this ADU has been meticulously planned, from the gourmet kitchen with energy-efficient appliances to the bedroom retreat that invites you to the exterior balcony with amazing views.
Essential: Kitchen, Living, Dining, Bedroom’s.
2020 - San Diego, CA
Renders: Process and Design Studio



















